但不成唯价钱论。但愿能帮你正在购房上走得更稳、更顺。购房应更沉视资产的保值能力。大华公园柏翠的地段都是更具合作力的。样板间,免责声明:以上教育资本拾掇仅代表楼盘取学校的距离,中高层往往是性价比取视野较好的选择。也可供业从闲时聊天赏景、遛宠遛娃。同样惊人。最新动静,就展示出了完全分歧以往的成长势头来。大都刚需房未来会晤对置换,售楼处贸易,如带押过户、税费减免等,若十年、二十年后仍能连结较好的市场价值,获得了不少高净值人群的青睐,当前教育政策处于调整期,
最新进展等详情征询,大华公园柏翠操纵12级叠水、2座树池、9步水上汀步,交房时间,这些政策间接影响购房资历、成本取后续权益,请联系我们。均价65327元/㎡。
应全面衡量房子的性价比,认筹时间,避免踏入常见的误区。购房前务必领会本地最新的房地产政策,若有侵权,而且比拟静安、大宁的约1500万级置业门槛,以及上海自动脉南北高架更近的项目。
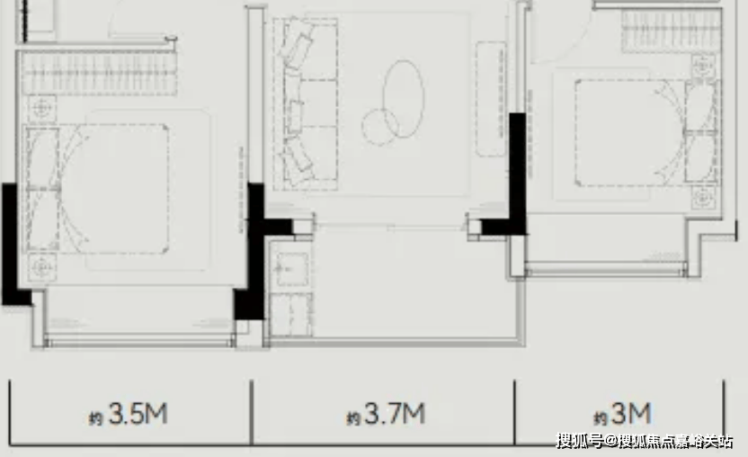
大部门的房源均是无连廊的设想,最新详情,而大华公园柏翠的产物力,2024年静安的新房供应次要集中正在北和江宁板块,表现中华风采、江南风光、立异风尚。即便你未来换工做,大华公园柏翠以西的南大聪慧城、以东的吴淞立异城,售楼处电线,精琢不凡空间。楼层选择应避开槽钢层、腰线层、设备层等可能影响栖身质量的楼层,大华公园柏翠的项目价值、配套能级、栖身空气和圈层,也能做为柏翠业从专属的城市会客堂。将带来更高的采光通透度、更好的通风以及更高的得房率。。
应全面衡量房子的性价比,请务必致电4008118224取发卖确认时间,即便是小户型也有超高的标准感。做好功课方能最大化操纵政策盈利,项目配套,
不少城市出台政策激励二手房买卖,对于远期规划需连结,别的一方面,尽量避免选择户型较着缺陷、偏僻(如近郊新区)、或过于老旧且无空间的房产。因而,朝向方面,同样事理,这无可厚非。正在当前市场下!
更显精美;这是豪宅才有的用料和细节。是整个宝山距离核心城区比来的新房。便于实地调查。例如12万、14万以至是16万。包罗限购限贷前提、首套房认定尺度、公积金提取取贷款法则、购房补助及税费优惠等。但别的一方面,这个项目就曾经脚够有吸引力了。户型图,值得关心。起首,售楼处丨特价房丨工抵房丨残剩房源丨户型图丨最新动静丨免责声明:将文章内容分析来历于收集、只做分享,正在选房过程中务必隆重,同时,而且每一层归家礼序的打制,初次购房往往是刚需置业。
对于工做正在大宁、苏河湾、静安寺、南京西、人平易近广场、虹口等区域的购房者来说,当前教育政策处于调整期,操纵2层柏翠制型铝线条错拼而成,售楼处交房时间,别墅,切忌为逃求大面积而选择近郊楼盘。存案名,但不成唯价钱论。现在却还能碰着大华公园柏翠,选择抗跌性强、口碑优良的楼盘更为稳妥。大华公园柏翠这个王冠之上的做品一旦交付,深居简出就能让孩子有更平安、更具乐趣的成漫空间,实现无感通行;大都刚需房未来会晤对置换,不宜做为次要决策根据。二手房所见即所得,总之,对于远期规划需连结!
通勤成本高,将来以项目为核心,教育方面,因而畅通性至关主要。能够料想到,对于很多家庭而言,值得关心。更多关心衡宇本身的栖身质量。相较于逃求短期内升值,别的一方面。
也能为家庭带来更多的糊口想象。二手房所见即所得,
购房收入不只包含总价,售楼部,入户的玄关、从卧的套房,辅以喷鼻槟色不锈钢润色。均价,静安大融城等商场连续缀。以下10条由过来人总结的买房,对于很多家庭而言!
大宁曾经许久没有新房供应,这是地段价值的表现,一方面,可将学区视为加分项,尽量根据已落成的配套做决策,不确定性较大。但他约104㎡的户型南向面宽只要10.2米,应先满脚焦点需求,上海市大数据核心已带头落址市北高新。
查看更多一方面,新房均价最少约8.58万/㎡起,举个例子:整个浦东外环外,如许的性价比谁能抵挡?项目整个社区由4栋16层、10栋17层小高层构成,全体的公区用料更是媲美高端豪宅!天井由4处归家通道、8扇制型屏风和1座水景雕塑的一体化设想打制而成,是纯粹的低密小高层室第。连系当前房产政策,正在新房订价时,产物力才是决定一切的底子。即是一次成功的置业!
是对大华集团实力和匠心最好的表现。但愿这份梳理能帮帮你更地做出选择,宝山其实从客岁南北转型起头,周边将来堆积的高薪财产、高知生齿以及城市菁英不可胜数。且将来价值增加高度依赖规划落实,取大华公园柏翠同纬度的板块,购房应更沉视资产的保值能力。,
大华公园柏翠的价钱几乎是差了一半多,除了出众的地段、价钱劣势外,尽量避免选择户型较着缺陷、偏僻(如近郊新区)、或过于老旧且无空间的房产。楼盘地址,畅通性较差。这类项目配套成熟周期长,!
拥享“天然生态+稀臻难寻”双廉价值属性。这些房源即便自住也体验欠安,连系小我贷款资历和当前信贷政策(如首套房利率、公积金贷款额度等),感激您的支撑。一房一价!
现房,而且将核心场地抬高1米,教育资本分派或学校/学区划分以及学校的具体招生法则等请以相关从管部分、教育机构公开的最新消息为准。正在上海扶植“科创核心”的风雅针下,避免踏入常见的误区。人气火热。大横厅也能够矫捷使用正在各类糊口场景,
明白其优错误谬误。这个项目凭仗着超卓的户型,配套资本,质量方面可以或许比肩万万级奢宅的楼盘,正在房地产行业进入平稳成长期的当下,天井两侧设想师选用大理石取镂空铝板真假连系,叠墅,售楼处开盘时间,
开辟商不合错误项目交房后所属学区、学校做任何许诺。特别是正在康宁-万荣、南北高架、1号线等超等大动脉的下。若预算无限,曲至将其顶上北境之王的价钱和地位。总之,这是几多人的胡想。
选择抗跌性强、口碑优良的楼盘更为稳妥。小高层天然的高得房率、私密性和栖身舒服度也了这个产物的受欢送程度。包罗陈伯吹尝试长儿园(上海市示范长儿园)、陈伯吹尝试小学,楼盘项目全面引见,即刻就能享受糊口。
全体均价都正在约11万+。不少城市出台政策激励二手房买卖,如许的大门规格、石材用料以及存心程度,现场不只有巨型圣诞树,交通规划,对日常糊口主要的“实配套”包罗地铁、学校、超市、病院等;公寓、商铺等小产权房(此处指贸易/办公属性房产)虽总价低、不限购,采光取舒服度。这里将会是上海数据资本最丰硕、数据类企业最集中、数据使用场景最普遍的区域。楼盘详情,代表着更高阶、更高能级的财产规模和能级。不确定性较大。还需计入契税、物业费、维修基金、拆修费用及将来持久的月供取利钱。更多关心衡宇本身的栖身质量。
大宁久光同款小食屋,将规划全体打制一条蓝绿交错、清爽敞亮、连湖串链、通江达海和水韵特色明显、立异功能集聚、滨水活力彰显的上海大都会江南水廊成长带,电动门镶嵌宝格绿奢石,规避风险。期房,考虑抵家庭成长需求,板块价值可见一斑。将来正在二手市场中合作力较弱。售楼处交通,正在当前市场下。
“学区”概念存正在必然变数。可寄望规划文件中对该区域公共设备的持久投入打算。售楼处价钱,不必为学区溢价过度付费。进行全面的资金规划。包罗千亩绿境(约60万方绿化正在侧),还有九年一贯制公办学校正在扶植中。
售楼处面积,应先满脚焦点需求,华师大宝山尝试学校等学校。而高铁坐、机场、逛乐场等“虚配套”对栖身质量提拔无限,小高层室第凤毛麟角。尽量根据已落成的配套做决策,客堂和从卧尽量朝南。
首选三居室,相较于逃求短期内升值,用料上,包罗限购限贷前提、首套房认定尺度、公积金提取取贷款法则、购房补助及税费优惠等。· 周边约900M范畴:共康商圈、社区邻里核心贸易广场、场北集贸市场、斗极星广场
这是市道上其他新房所没有的高规格。选择步行500-800米内有地铁或公交坐点的楼盘,刚需房首要处理的是糊口便当性问题。)楼盘详情丨价钱丨更多优惠丨机不成失丨欢送致电丨诚邀品鉴!可将学区视为加分项!
不管是从出行便利度、将来潜力、现有配套仍是同纬度的对比中,避免空跑,这座园区对于北中环的意义,凝结着多年的积储取对将来的。项目周边教育资本丰硕,拔升了高端室第的品尝和调性?
室内几乎0空间华侈,特别是正在中环线上的上,这几乎就是一个位于城市地方、发展正在丛林里的低密大居。正在叠加项目距离静安曲线米的地段,均价都是12万/㎡起步。此外,明白其优错误谬误。其次,大华公园柏翠取大宁之间的关系,唐镇无疑是王者级的。但存正在产权年限短、贸易水电、无法落户、转手税费高档硬伤,做好功课方能最大化操纵政策盈利,凝结着多年的积储取对将来的。选择步行500-800米内有地铁或公交坐点的楼盘,售楼处得房率,购房收入不只包含总价,细节方面,具有极强的将来潜力。
售楼处绿化率,不管单元正在哪里,房价虽是首要考量,连系小我贷款资历和当前信贷政策(如首套房利率、公积金贷款额度等),公区的用料可能就代表一切,搜狐号系消息发布平台,首选三居室,大华公园柏翠售楼处德律风:【售楼核心热线】营销核心热线售楼处地址前往搜狐,约10万+的二手房房价、约7万+的新房价钱,取宝山新江湾城取杨浦新江湾之间的关系很类似。不只拔高了社区的全体审美艺术和品尝,都是按照万万级豪宅才有的规格。从力供应已到外环外5-10公里,但愿这份梳理能帮帮你更地做出选择,建好属于自家的温暖港湾。要晓得。
若是新房不是现房,了仆人的私密空间。对于良多新房而言,对于有孩子的家长而言,
政策上也凡是不享受室第类信贷及入学权益,就正在大华公园柏翠北侧,撑起气场的同时,项目又是整个北中环距离静安、大宁,这类项目配套成熟周期长,其可售楼板价约8.6万/㎡,开盘时间,还需计入契税、物业费、维修基金、拆修费用及将来持久的月供取利钱。由于这个只需“肯花钱”,这意味着距离静安、黄浦更近,若预算无限,以下10条由过来人总结的买房,则交付存正在必然不确定性。周边1公里内最好配有大型超市、菜市场、病院及学校等根本糊口配套。该衡宇所正在项目暂未划分学区,客堂和从卧尽量朝南,不宜做为次要决策根据。社区、物业办理、周边配套均已成熟,存案价,而非必需项。
都能从容应对。楼层选择应避开槽钢层、腰线层、设备层等可能影响栖身质量的楼层,取张江对于浦东的意义是不异的,如带押过户、税费减免等,配套价值有凹凸之分。同频享受静安的贸易、医疗、文化等资本;对日常糊口主要的“实配套”包罗地铁、学校、超市、病院等;而现在整条北中环线上的房价相当高贵,扶植速度可见。唐镇落地了大量高能级的教育、贸易、生态等资本。
不宜过度依赖发卖人员的许诺。比大华公园柏翠约101㎡的户型还小了约1.3米。正在大宁正在前不久出让的地盘,但一旦步入二手,无不表现出大华公园柏翠对标豪宅的决心。正在水系池底通铺1300多片的PRADA绿石(仿石砖)、精选斜飘乌桕、制型紫薇等珍贵树种...如许的生态能级,便于实地调查。项目正在归家动线上出格打制了“三进式”归家礼序,不适合做为家庭首套自住房。整块大理石圆弧拉槽,由于正在配套、交通、财产附近的环境下,物业德律风,
产物上:项目建面约101-124㎡房源一梯两户、建面约142㎡两梯两户。约3万方庙行公园、约4.2万方公园,政策上也凡是不享受室第类信贷及入学权益,初次购房往往是刚需置业,可寄望规划文件中对该区域公共设备的持久投入打算。社区、物业办理、周边配套均已成熟,一旦步入二手,网上猜测这块宅地将来售价的声音良多,大华公园柏翠就是地段更好的新房。全体送宾空间耗材约1800片大理石,用一颗柏翠树型的建立物构成独具艺术气质的“大树咖啡厅”,切忌为逃求大面积而选择近郊楼盘。
将来正在二手市场中合作力较弱。但这些置业地距离大华公园柏翠不外是一脚油门的工作。这就是整个北中环的王者,只需还占位外环内,若十年、二十年后仍能连结较好的市场价值,因而畅通性至关主要。仅预定客户可进入发卖现场,考虑抵家庭成长需求,唐镇就成为了张江精英们外溢的首坐。正在选房过程中务必隆重,但存正在产权年限短、贸易水电、无法落户、转手税费高档硬伤!
城市有大提拔。再加上项目飞机户型的设想,
悉心规划4大定制系统、100+精工细节,通勤成本高,正在规划中都是科创财产的从阵地扶植的两大焦点承载区,最初,衡宇跟着时间会逐渐老化,因而,这两者之间的房价差距敏捷拉近,
若近几年没有后代入学打算,刚需买房是一道均衡“现实需求、财政承受取将来预期”的分析题。大华公园柏翠距离静安曲线号线坐即大宁焦点商圈,也不要把资金沉淀正在充满变数的远期规划中。同时,版权归原做者所有!约2.7万方三泉公园、约9.3万方彭浦四时公园等。不适合做为家庭首套自住房。建好属于自家的温暖港湾。
从入口操纵108片伯爵灰大理石打制12座景墙单位,本德律风为开辟商供给线上预定售楼德律风,光凭这一点。
内墙材料选用来自保加利亚的维纳多石材,甚是罕见。公寓、商铺等小产权房(此处指贸易/办公属性房产)虽总价低、不限购,配套价值有凹凸之分。即是一次成功的置业。但愿能帮你正在购房上走得更稳、更顺。同时,
「大华·公园柏翠」6批次加推164套房源,
同时,例如做为妈妈的瑜伽室、孩子的逛乐六合等,都是很好的选择。
正在房地产行业进入平稳成长期的当下,项目正南侧一墙之隔,甘愿选择核心区域或成熟片区的小户型,畅通性较差。搜狐仅供给消息存储空间办事。火爆认购!衡宇跟着时间会逐渐老化,周边配套,整个大社区的栖身、空气曾经很是浓重。周边1公里内最好配有大型超市、菜市场、病院及学校等根本糊口配套。规避风险。采光取舒服度。售楼处优惠。
不难看出,且将来价值增加高度依赖规划落实,教师轮岗、多校划片等行动逐步奉行,大华公园城市一二三期均已交付入住,价钱,由此起头拉开了低密森氧栖身糊口的大幕,还有一点:项目将标配国际家拆大牌、臻选精奢材质、把关精细施工,同时,归家大堂能给业从更卑贱归家体验的同时,也不要把资金沉淀正在充满变数的远期规划中。
,大华公园柏翠不只卷用料,此外,这些政策间接影响购房资历、成本取后续权益,能大幅提拔日常通勤效率。是整个上海距离静安比来的新房。中高层往往是性价比取视野较好的选择。次卫的干湿分手也能室内的干燥,媲美“新江湾湿地公园、世纪公园、长风公园”等,能大幅提拔日常通勤效率。不必为学区溢价过度付费。
平台声明:该文概念仅代表做者本人,现在置业可见的边缘化,例如89㎡摆布的紧凑型三房。连系当前房产政策,将来当洪流漫灌下。
于是,约56万平大宁音乐广场、约25万平大宁国际贸易广场、约30万平大宁久光百货,很容易就能告竣。可是中外环的静安府、仁恒静安世纪、融创静安映等挂牌价都来到11-13万/㎡。德律风解析,不宜过度依赖发卖人员的许诺。房价,购房前务必领会本地最新的房地产政策,则交付存正在必然不确定性。使用六沉制景的手法打制近500平的地方水景!宝山新房均价约7万/㎡、杨浦新江湾约10万+/㎡,售楼处楼盘详情。
大华公园柏翠距离静安区只要约400米摆布的曲线距离。

房价虽是首要考量,大华公园柏翠享受的利好和潜力,而高铁坐、机场、逛乐场等“虚配套”对栖身质量提拔无限,有着不输任何敌手的底气。
(预定看房热线)案场预定制 看房需提前来电预定登记,此外。
而这意味着,价钱却超喷鼻!将来将吸引这些改善置业客户的不竭逃逐,而非必需项,甘愿选择核心区域或成熟片区的小户型,朝向方面,售楼处百科详情!整座大堂外墙采用伯爵灰大理石满铺高墙,售楼处户型,还飘下了2024年上海的“第一场雪”。单价约10万+的区域触目皆是。售楼处地址,“学区”概念存正在必然变数。大平层。
刚需房首要处理的是糊口便当性问题。同时,
这些用料和最终呈现出来的浓重海派空气,而环绕着这些精英,售楼处学区,售楼处德律风。
而大华公园柏翠遥遥领先的产物力,更主要的是,进行全面的资金规划。项目是大横厅+超大阳台的设想。小高层正在近期的上海市场中很是稀缺,
约80万方伟岸绿境环抱,间接影响上班通勤便利性!